Munari
Progetto architettonico edilizia privata
2023
Munari
Progetto architettonico edilizia privata
2023
Munari
Progetto architettonico edilizia privata
2023
Munari
Progetto architettonico edilizia privata
2023
Munari
Progetto architettonico edilizia privata
2023
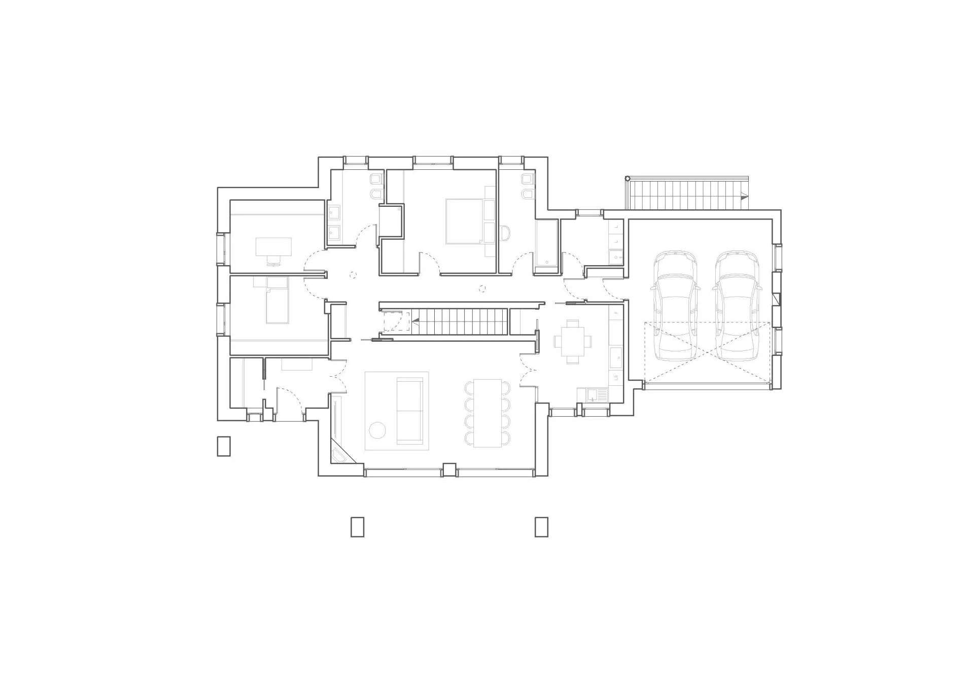
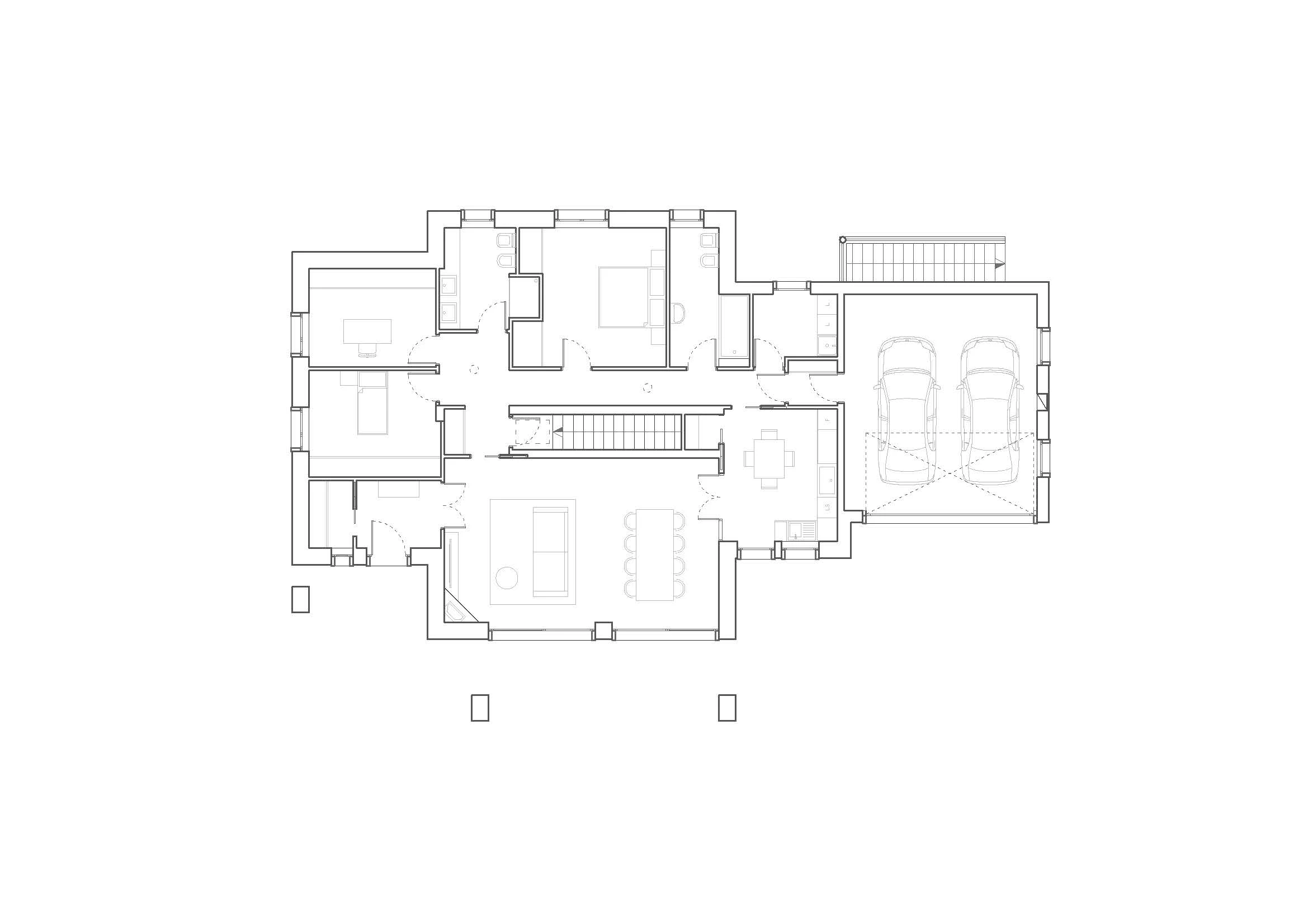
Benvenuti nel cuore pulsante di uno dei nostri progetti architettonici più emozionanti. In questa residenza unica, abbiamo fuso l'estetica contemporanea con soluzioni pratiche, creando un rifugio che va oltre la mera funzionalità, trasformandosi in un'opera d'arte vivente.La Casa è molto più di un semplice edificio; è l'incarnazione di un'idea, di una visione che si è evoluta attraverso un processo creativo intenso e collaborativo. Ogni angolo di questa dimora riflette l'equilibrio delicato tra forme audaci e una progettazione attenta.
Anno
2023
Tipologia
Progetto architettonico edilizia privata
Cliente
Munari
Il nostro studio di architettura è guidato da una forte visione: creare spazi che ispirino e soddisfino le esigenze dei nostri clienti, sia che si tratti di spazi commerciali o residenziali. La nostra filosofia è basata sull'integrazione di innovazione, sostenibilità e bellezza, creando progetti distintivi che superano le aspettative.
Il nostro studio di architettura è guidato da una forte visione: creare spazi che ispirino e soddisfino le esigenze dei nostri clienti, sia che si tratti di spazi commerciali o residenziali. La nostra filosofia è basata sull'integrazione di innovazione, sostenibilità e bellezza, creando progetti distintivi che superano le aspettative.
Next project